物件の特長・
おすすめポイント
【こちらは計画物件となります】
①中庄駅近く
②駐車場50台以上完備
③新築物件
④ドラッグ内調剤薬局あり
引渡状態:スケルトン渡し
①中庄駅近く
②駐車場50台以上完備
③新築物件
④ドラッグ内調剤薬局あり
引渡状態:スケルトン渡し
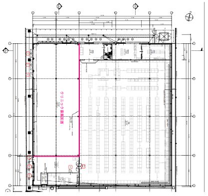
物件概要
| 募集科目 | 皮膚科、泌尿器科、精神科、歯科 |
|---|---|
| 所在地 | 岡山県倉敷市松島1096-1 |
| アクセス | JR中庄駅徒歩5分 |
| 区画面積 | 1階2区画(2診予定):計120坪 |
| 賃料 | 坪10,000円(税別) |
| 契約期間 | 20年(要相談) |
| 開業時期 | 26年春頃予定 |


