物件の特長・
おすすめポイント
【こちらは計画物件となります】
①1-2階ウエルシア、3-4階クリニック区画
②乗降客数の多い駅前立地
③阪急淡路駅高架化事業及び土地区画整理事業エリア
引渡状態:スケルトン渡し
①1-2階ウエルシア、3-4階クリニック区画
②乗降客数の多い駅前立地
③阪急淡路駅高架化事業及び土地区画整理事業エリア
引渡状態:スケルトン渡し
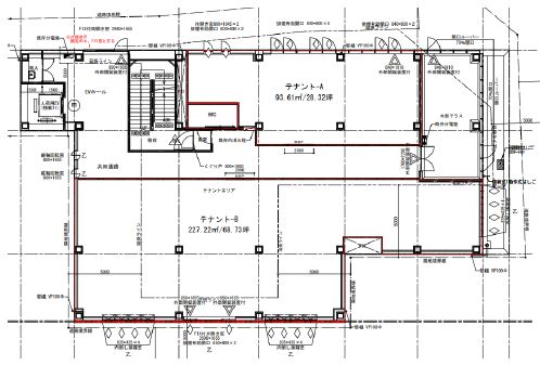
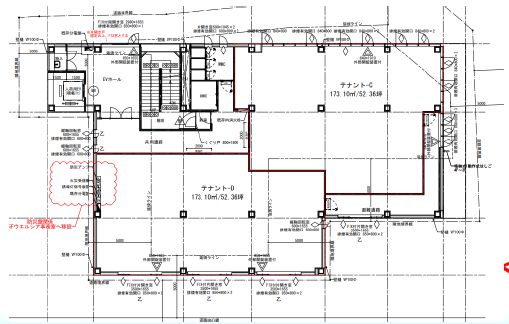
物件概要
| 募集科目 | 歯科以外全て |
|---|---|
| 所在地 | 大阪府大阪市東淀川区東淡路4丁目33-34 |
| アクセス | 阪急京都線淡路駅徒歩2分 / JRおおさか東線JR淡路駅徒歩3分 |
| 区画面積 | 約28坪~約68坪 |
| 賃料 | 14,000円 / 坪(税別) 共益費:賃料に含む |
| 契約期間 | 20-25年予定 |
| 開業時期 | 要相談 |





