物件の特長・
おすすめポイント
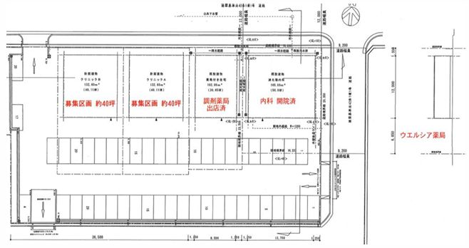
【こちらは計画物件となります】
①ウエルシア三木青山店 盛業中
②オーナー建貸し予定
③周辺に商業施設多く、集患しやすい立地
契約形態:普通建物賃貸借契約
引渡状態:スケルトン
※紹介料支払い不可案件となります
①ウエルシア三木青山店 盛業中
②オーナー建貸し予定
③周辺に商業施設多く、集患しやすい立地
契約形態:普通建物賃貸借契約
引渡状態:スケルトン
※紹介料支払い不可案件となります
物件概要
| 募集科目 | 内科以外 |
|---|---|
| 所在地 | 兵庫県三木市志染町青山6丁目 |
| アクセス | 神戸電鉄粟生線 広野ゴルフ場前駅より車で5分 |
| 区画面積 | 2区画:各区画約40坪 |
| 賃料 | 要相談 |
| 契約期間 | |
| 開業時期 | 要相談 |


