物件の特長・
おすすめポイント
【こちらは計画物件となります】
①ウエルシア尼崎武庫元町店盛業中
②新築医療モール計画
③周辺に商業施設多く、集患しやすい立地
契約形態:定期建物賃貸借契約
引渡状態:スケルトン渡し
①ウエルシア尼崎武庫元町店盛業中
②新築医療モール計画
③周辺に商業施設多く、集患しやすい立地
契約形態:定期建物賃貸借契約
引渡状態:スケルトン渡し
物件概要
| 募集科目 | 全て |
|---|---|
| 所在地 | 兵庫県尼崎市武庫元町1丁目25 |
| アクセス | 阪急神戸線武庫之荘駅徒歩20分 |
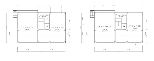
| 区画面積 | 4区画:各区画約47坪拡縮相談可能 |
| 賃料 | 要相談 |
| 契約期間 | 27年秋頃予定 |
| 開業時期 |


